Endring etter enklere prosess av Reguleringsplan for Mule sykehjem, planID 642

Innhold

Reguleringsplan for Mule sykehjem, vedtatt i Bystyret 26.03.15 (sak 30/15) er foreslått endret i tråd med plan- og bygningsloven § 12-14. Forslagsstiller er Porsgrunn kommune v/ bygg og eiendomsdrift.

I samråd med kommunens administrasjon er det vurdert at endringen i liten grad vil påvirke gjennomføringen av planen for øvrig, ikke vil gå utover hovedrammene i planen og heller ikke berøre hensynet til viktige natur- og friluftsområder. Med hjemmel i plan- og bygningsloven § 12-14 kan slike endringer tas etter en enklere planprosess.

Figur 1: Oversiktskart, planområdet er markert med rødt.
Figur 1: Oversiktskart, planområdet er markert med rødt.

Bakgrunnen for planendringen er at Bystyret i Porsgrunn kommune den 7. april 2022 (vedlegg 6) vedtok å flytte og samlokalisere legevaktene i Porsgrunn, Bamble og Kragerø. En av de viktigste argumentene for plasseringen av felles legevakt på Mule var å sikre nærhet til E18. Dette for å korte ned responstid og tilkomst til legevakt og evt. videre til sykehus.

Hensikten med planendringen er å legge til rette for etablering av en felles legevakt i tilknytning til Mule sykehjem. Reguleringsbestemmelsene må derfor endres til at legevakt blir eksplisitt tillatt innenfor formålet for området.

Selv om legevakt i prinsippet faller inn under det samme underformålet som sykehjem (Sosikode 1168: institusjon, sykehjem, og omsorgsboliger), var det ikke spesifisert i bestemmelsene at legevakt kunne tillates etablert. Planendringen innebærer derfor en presisering i reguleringsbestemmelsene – uten at plankartet endres.

Endringene er nærmere beskrevet i vedlegg 3 Forslagsstillers planbeskrivelse- forenklet prosess.

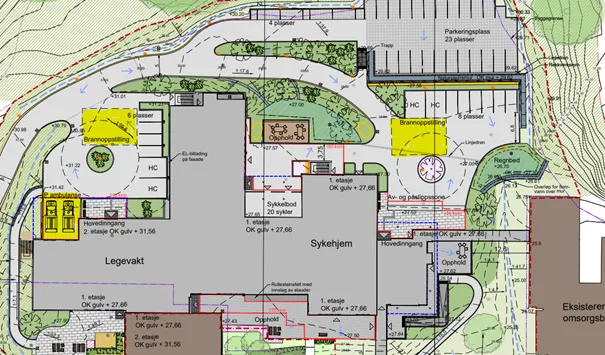
Figur 2: Situasjonsplan.
Figur 2: Situasjonsplan.

Kommunedirektørens foreløpige vurdering

Kommunedirektøren har foreløpig stilt seg positiv til endringen. Samlokalisering av legevaktene i Porsgrunn, Bamble og Kragerø er godt belyst i tidligere saksfremstilling (vedlegg 5,6,7 og 8).

Det er prosjektert adkomstvei og brannoppstillingsplasser for brannbil iht. kommunens normer. Det er gjort sporinger for brannbil, og det er tilstrekkelig plass til å snu i området rundt brannoppstillingsplassene. Det er vist til at løsning for brannoppstilling er gjennomgått med brannkonsulenten i prosjektet.

I tidligere saksutredning i sak om Sykehjemsutbygging Trinn 3 B1 (vedlegg 8) ble følgende vurdert til å være viktig moment: «[…] mens det for legevakts-delen er viktigst å få etablert en skjermet tilkomst for legevakt/politi.» Dette er ivaretatt ved at det tilrettelegges for egen skjermet parkeringsplass for 2 ambulanser på nordvestre hjørne av bygget.

I området er det et nytt boligfelt på nordsiden av arealene for sykehjem. Trafikk til legevakt vil benytte samme veitrase som øvrige trafikk til Mule sykehjem (IN1). Med bakgrunn i lav hastighet og begrenset trafikkmengde vurderes det i planen at etablering av legevakt på Mule ikke vil bidra til trafikkstøy. Det legges også opp til at sirenebruk reguleres i interne rutiner i legevakten. For å ivareta trafikksikkerheten for myke trafikanter er det etablert gang- og sykkelvei langs den aktuelle veistrekningen ved Mule sykehjem.

Endringen går ikke utover hovedrammene i planen. Legevakt er innenfor samme underformål som sykehjem. Bystyret i Porsgrunn har vedtatt at ny legevakt skal etableres på Mule i forbindelse med byggetrinn II. Øverste myndighet i kommunen har dermed avklart at en ønsker legevakten plassert på Mule. Bystyret gjorde vedtak om dette i vedtak av 07.04.2022, sak 18/22.

Kommunedirektøren vurderer foreløpig at endringen ikke går utover hovedrammene i planen og heller ikke berører hensynet til viktige natur- og friluftsområder, og derfor kan behandles etter enklere prosess, jf. pbl § 12-14.

I henhold til plan- og bygningsloven (PBL) § 12-14 gis det nå anledning til å komme med synspunkter på foreslåtte endringer. Fristen for dette er 09.06.2025.

Send dine synspunkter til postmottak@porsgrunn.kommune.no eller pr. post til Byutvikling, Postboks 128, 3901 Porsgrunn.

Har du spørsmål?

Ta kontakt med saksbehandler Ulrikke Ryen på epost ulrikke.ryen@porsgrunn.kommune.no.

Til toppen