«Reguleringsplan for Elverhøy», vedtatt i Bystyret 11.02.2021, med mindre endring vedtatt 23.11.2021, er foreslått endret. Forslagsstiller er Elverhøy Park AS ved plankonsulent Børve Borchsenius AS.


Om endringen
Gjeldende plan ble utarbeidet for Elverhøy Park AS med hensikten å utvikle boliger på gbnr. 200/4134 (Elverhøy) og 200/764 (Grenlandsgata 6). Boligprosjektet som ble utviklet på disse eiendommene har fått rammetillatelse, og ble senere lagt ut for salg. Det var ikke tilstrekkelig interesse for prosjektet i markedet, og på grunn av etterspørsel etter boliger med overdekket parkeringsløsning, ønsker nå forslagsstiller å legge til rette for dette gjennom planendringen.
Etter at planen ble vedtatt har forslagsstiller overtatt gbnr. 200/3836, der det tidligere var barnehagedrift. Gjeldende plan åpner for både barnehage og bolig på denne eiendommen. Siden barnehage ikke lenger er aktuell arealbruk, foreslår forslagsstiller at formålet offentlig eller privat tjenesteyting (barnehage) tas ut av planen.
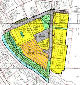
For å legge til rette for den ønskede løsningen for både boliger og parkeringsanlegg, er det behov for endring av gjeldende plan. Dette innebærer hovedsakelig at område for parkering (f_P) og bolig (BK2 og KBT) slås sammen og blir til ett område med boligformål (BK2).
Endringene er nærmere beskrevet i vedlegg 1.
Innspill til planendringen
Eventuelle innspill sendes til Byutvikling på epost til postmottak@porsgrunn.kommune.no eller pr. post til Byutvikling, Postboks 128, 3901 Porsgrunn.
Fristen er 28.04.2023
Har du spørsmål?
Ta kontakt med saksbehandler Hans Magnus K. Kristensen på epost hans.magnus.kasi.kristensen@porsgrunn.kommune.no.
Vedlegg
- Forslagsstillers planbeskrivelse – forenklet prosess, datert 08.02.2023
- Forslag til endrede bestemmelser
- Forslag til endrede bestemmelser (vist med rødt)
- Forslag til endret plankart
- Forslag til endringer på plankart (vist med rødt)
- Gjeldende plankart planID 259, vedtatt 11.02.21
- Illustrasjonsplan, datert 10.02.23
- Terrengsnitt, datert 10.02.23
- Faresonekartlegging, stabilitetsberegninger og vurderinger, datert 15.09.2021
- Kvalitetssikring av områdestabilitetsvurdering, datert 04.05.21