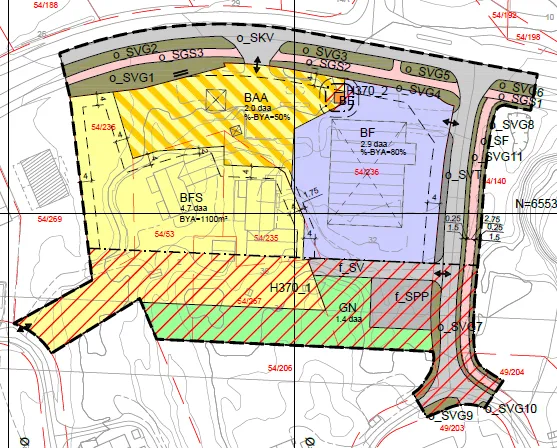
Porsgrunn kommune starter opp forhandlinger med Stridsklev Eiendom AS vedrørende utbyggingsavtale for Bryns gnr./bnr. 54/236 m.fl.

Porsgrunn kommune starter opp forhandlinger med Stridsklev Eiendom AS vedrørende utbyggingsavtale for Bryns gnr./bnr. 54/236 m.fl.
Forhandlingene vil omhandle opparbeidelse av fortau.
For mer informasjon om reguleringsplanen henvises det til saksnummer 17/06474 i kommunens arkivssystem.
Fremforhandlet avtale vil bli lagt ut til offentlig ettersyn før den fremmes for behandling i bystyret.
Innspill til forhandlingene kan rettes skriftlig til:
- Rådmannens stab
- E-post: postmottak@porsgrunn.kommune.no, eller
- Postadresse: Pb 128, 3901 Porsgrunn
- Merk henvendelsen med saksnummer 18/12745
Kontaktperson
- Terje Madsen
- E-post: terje.madsen@porsgrunn.kommune.no
- Telefon: 95 23 21 08
Denne kunngjøringen er i henhold til plan- og bygningsloven av 27. juni 2008 nr. 71 § 17-4 første ledd.