Den 15.06.2023, i sak 36/23 vedtok Bystyret forslag til reguleringsplan for Ekrevegen.
 
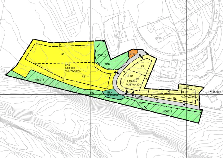
    Planområdet er på ca. 9 dekar, og ligger i Ekrevegen på søndre Tveten i Porsgrunn kommune, med dyrket mark mot vest, etablert boligbebyggelse mot nord og Kromsdalen med vernet natur mot sør.
Hensikten med planarbeidet er å tilrettelegg frittliggende og konsentrert boligbebyggelse i 3 etasjer ved Ekrevegen (gnr/bnr 51/1), med tilhørende infrastruktur og leke- og uteoppholdsareal.
Hva betyr vedtaket?
Vedtaket betyr at reguleringsplanen nå er rettskraftig og kan brukes som grunnlag for å søke om nye byggetiltak i området.
Klagerett
Vedtaket kan påklages. Hvis du ønsker å klage skal klagen først sendes skriftlig til virksomhet for Byutvikling. Virksomheten skriver da en sak til Utvalg for miljø- og byutvikling som tar stilling til klagen.
Klagen sendes helst på epost til postmottak@porsgrunn.kommune.no
eller pr. post til Porsgrunn kommune, Byutvikling, Postboks 128, 3901 Porsgrunn
Frist: 25.08.2023.
Har du spørsmål?
Kontakt gjerne Heidi Østby - heidi.ostby@porsgrunn.kommune.no
Mer om kunngjøring av godkjente planer finner du i plan- og bygningslovens § 12-12.