Endring av reguleringsplan for Vestsiden Brygge – Lahelle Nord, planID 137, er nå godkjent

Innhold

31.03.2020, i sak 19/20, vedtok kommunen v/utvalg for miljø og byutvikling forslag til endring av reguleringsplan for Vestsiden Brygge – Lahelle Nord, plankart dat. 07.01.20 og planbestemmelser dat. 12.03.20.

Vestsiden Brygge – Lahelle Nord

Planen med vedlegg

  1. Oversiktskart
  2. Saksframlegg og protokoll i UMB-sak 19/20
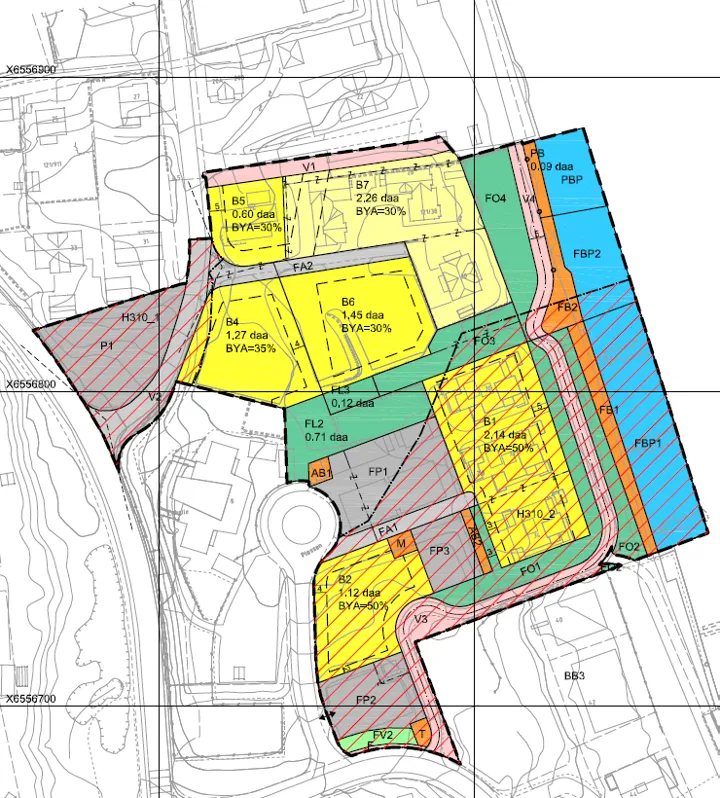
  3. Reguleringsplankart vedtatt 31.03.20
  4. Reguleringsplanbestemmelser vedtatt 31.03.20
  5. Søknad/beskrivelse av planendring
  6. Opprinnelig plankart
  7. Opprinnelige planbestemmelser
  8. Tilgrensende reguleringsplan, plankart, for barnehage og boliger, planID 141
  9. Tilgrensende reguleringsplan, plankart, for Lahelle sør, planID 138
  10. Planuttalelse fra Fylkeskommunen
  11. Planuttalelse fra Fylkesmannen
  12. Uttalelse fra Vestsiden Brygge Brl
  13. Uttalelse fra Elveparken Brygge Brl I, II og 3
  14. JM Norges oppsummering av p-plasser
  15. Kommunens brev ut med varsling av planendringsforslaget

Hva betyr vedtaket?

Vedtaket betyr at reguleringsplanen nå er rettskraftig og kan brukes som grunnlag for å søke om nye byggetiltak i området.

Planområdet ligger langs Porsgrunnselva og ligger så langt i nord at søndre del av Elvegata inngår  i planområdet.

Hovedhensikten med planendringen er å løse utfordringer knyttet til gjesteparkering for JM Norge AS sitt boligprosjekt i planområdet for tilgrensende reguleringsplan for Lahelle sør, planID 138.  

Klagerett

Vedtaket kan påklages av berørte parter. Hvis du ønsker å klage skal klagen først sendes skriftlig til virksomhet for Byutvikling. Virksomheten skriver da en sak til Utvalg for miljø- og byutvikling som tar stilling til klagen. Klagen sendes helst på epost til postmottak@porsgrunn.kommune.no, eller pr. post til Porsgrunn kommune, Byutvikling, Postboks 128, 3901 Porsgrunn innen 05.06.2020. 

Har du spørsmål?

Kontakt gjerne Byutvikling v/saksbehandler John Lium, john.lium@porsgrunn.kommune.no, tlf. 35 54 74 21.

Mer om kunngjøring av godkjente planer finner du i plan- og bygningslovens § 12-12.

Til toppen